
We last discussed the Rookery in Sec. 8.26, in which I covered the opening of the new Post-fire County Courthouse/City Hall Building in December 1884, some thirteen years after the fire. The city had moved all of its offices from the post-fire “temporary” City Hall (pejoratively referred to as “The Rookery”) that Van Osdel had designed around the surviving Water Reservoir at the southwest corner of Adams and La Salle, abandoning the site. Hoping to raise some badly needed income, it began looking for a developer to lease the land who would promise to erect a fireproof building with a value of not less than $800,000. There were three offers, of which the one chosen, that of Henry. S. Everhart’s had been suspiciously the lowest. While the other two had offered to start paying rent and taxes immediately, Everhart had asked to be exempt from rent and taxes from March 1885 to May 1886, a reduction to the city of $30,000 in rent and $6,000 in taxes. Nevertheless, Everhart’s offer was chosen the week before the Grannis fire (Feb. 19) by a majority of City Council (who surely had been promised considerably less than the $36,000 for their vote).
Mayor Harrison wisely responded to the public outcry over the scandal by vetoing the council vote and recommended that further bids be sought. Three months of quiet negotiating resulted in an announcement on May 12, 1885, that the site would be leased to a group of investors led by Edward C. Waller for 99 years at an annual rent of $35,000. In return, the group promised to erect the city’s largest office building, estimated to cost $1 million (for which it was reported that sketches for a 10-story structure had already been made) and would begin paying rent as of May 1, 1886. The company that had cemented the deal was the Central Safety Deposit Company, a “front company” formed in response to state law that prohibited companies from real estate speculation, unless, and here is the loophole, the company was a “banking association” that needed a building to conduct its business. Many such entities were formed by Chicago real estate developers who only had to build a vault in the basement of their new building to meet the letter of the law. Among the stockholders of the Central Safety Deposit Company, represented by Waller (treasurer and secretary) were Owen F. Aldis (pres.), Norman B. Ream (vice pres., who was a grain trader), G. W. Hale (brother of William E. Hale, inventor of the hydraulic elevator) and Waller’s long-time friend, Daniel H. Burnham (see Sec. 3.11). The project was to be financed by none other than Peter C. and Shepherd Brooks, the princes of Dearborn Street. Evidently, the Brookses and Aldis had seized the opportunity to gain a prime site in the heart of the emerging La Salle Street financial district that was also in the Adams Street corridor, by once again acquiring vacated public property (as they had done with the Montauk Block on the old Customs House site) to build another large office building designed by Burnham & Root. If Aldis and the Brookses couldn’t beat City Hall in their effort to develop Dearborn, they, at least, now had the “clout” to buy City Hall and make money on La Salle.
We had first encountered E.C. Waller in Sec. 8.13 as the real estate broker who pulled together the lots at the northeast corner of La Salle and Adams for the Home Insurance Company’s building by Jenney. Waller (1854-1931), born in Maysville, Kentucky, had moved with his family prior to the Civil War to Chicago where his father had settled on the West Side, in the heart of Chicago’s affluent colony of former Kentuckians centered around the intersection of Ashland (the name of the home of Kentucky’s favorite son, Henry Clay) and Jackson. The Waller children were close friends with the family across the street who had moved here from Louisville. The father of the friends’ family was Carter Harrison who, long before he was elected mayor, had become like an uncle to the young Waller and his siblings. A new insider deal had simply supplanted the earlier boodle scheme that the Mayor had vetoed.

By March 1886, the foundations of The Rookery had been completed (see Sec. 10 below on Construction), with work commencing on the superstructure. The design of the building’s exterior, therefore, must have been substantially completed by the fall of 1885, in order for the stone and terra cotta contracts to have been awarded with sufficient lead time to start construction in March. Both Inland Architect and the Inter-Ocean in their reports on the awarding of the lease to the Waller group in May 1885, stated that sketches for the building had already been made. Harriet Monroe’s biography of Root provided an insight into the probable sequence of events in Burnham and Root’s office that produced the design of the Rookery:
“Mr. Burnham was skillful in laying out a building. Root did not enjoy this part of the work, and rarely assumed it… When a building came to the office, Mr. Burnham, as a rule, laid out more or less roughly ground and floor plans. Frequently he made many such studies, the partners deciding together upon the best one, which Root would use as the first element of his problem in designing the exterior… Root often felt a certain reluctance in initiative. His mind was of the Shakespearean type: it could build temples, towers and palaces upon a hint; but it craved the hint, as Shakespear [sic] craved his plot, for a starting-point of his dream. Usually this hint came from one or more conditions of building, kind of material to be used, amount to be expended or some other element of the equation. Sometimes the suggestive word came from a client, oftener from his partner, or perhaps the latter would embody it in a sketch drawn in a few rough lines. And from such a seed the plant would grow and flower in Root’s brain as swiftly as a magical mango-tree… He had the rare power of seeing the finished building with his mind’s eye before he put pencil to paper – a complete architectural prevision. A word, a hint, a sudden thought, would send a great structure shooting upward in his imagination, and a rush of swift exact strokes on brown paper would make it a reality. “He could really see it,” says Mr. Burnham; “I have never seen any one like him in this respect. He would grow abstracted and silent, and a far-away look would come into his eyes, and the building was there before him – every stone of it.”
“Another [architect who had worked for Root], dwells upon the accuracy of Root’s drawing… “When he had a new job in his mind he would sit and think it over quietly; and then perhaps he would pull down a book of photographs in the style he wanted; and he would give just a glance to each picture – never stopping – go through the whole book in five minutes, turning the leaves just as fast as he could with his chubby fingers. And then he would shut it up and say, ‘demmit!’ under his breath – still turning the thing over and over in his mind. And in a day or two he would see that building in front of him, and throw it on paper like lightning.”
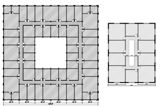
Most likely, the Rookery was no exception to the office’s standard procedures. I have already reviewed how 19th century architects planned a building around daylight requirements (see Sec. 2.7-11). Hence, Burnham’s preliminary plan studies for the site, surrounded on all four sides by a street (i.e., immediate daylight) would have revealed a startling fact: unlike all of their previous skyscrapers, the site’s 168′ x 178′ dimensions would free them from their conventional scheme of a thin slab of a double-loaded corridor (Insurance Exchange and the Phoenix).

One alternative would have been an H-plan like the Rialto, i.e., a thin double-loaded corridor facing La Salle with second one paralleling it to the east. The problem with this scheme was two-fold, First, it didn’t take advantage of the views/space/daylight available along Adams, and second, too much space would be lost in the exposed light courts between the two slabs. A second option, then would have been to expand the hollow doughnut scheme of the Burlington Building.

This would have resulted in a huge waste of floor area ($$) in the resulting interior atrium. More than likely Burnham would have tried all of these schemes just to make sure that what he probably felt all along, that is, that the double-loaded corridor plan that Boyington had employed fifteen years earlier in the Grand Pacific Hotel, for a site with the same overall dimensions just across Quincy Street, would be the most efficient use of the site.



This meant that the Rookery would present Root not with a front and a side elevation to design, as was the case with the Rialto, but instead, two long, contiguous elevations, a situation similar to the challenge he faced with the much shorter Chicago, Burlington, and Quincy Railroad Building, also facing Adams Street and only two blocks to the west.

Quite a different problem from the Burlington Building, however, would be the design of the Rookery’s atrium, for instead of presenting Root with the design of a similar awe-inspiring tall space (even though the size of the two courts were similar, CBQ’s was 55′ x 75′ while the Rookery’s would be 62′ x 71″), the double-loaded corridor scheme of the Rookery would require that the skylight over the atrium be brought down to the second floor, so that the inner tier of offices above would have direct exposure to fresh air and daylight. The atrium of the Rookery would feel more like a greenhouse than like a larger version of the Burlington’s spacious atrium or the 84′ x 144′ Grand Court in San Francisco’s Palace Hotel (1871).

In reality, once again it would be George Post to whom Root would look for ideas. In this case, the problem he faced was remarkably similar to the one Post had confronted in the design of the recently completed New York Produce Exchange.

FURTHER READING:
Hoffmann, Donald. The Architecture of John Wellborn Root. Baltimore: Johns Hopkins University Press, 1973.
Zukowski, John. Chicago Architecture 1872-1922: Birth of a Metropolis, Munich: Prestel, 1987.
(If you have any questions or suggestions, please feel free to eMail me at: thearchitectureprofessor@gmail.com)



